How to order a Commercial Door

Commercial doors are not one-size-fits-all. Proper measurements are crucial to ensure you get the correct door to allow for a seamless installation and optimal functionality. In this guide, we’ll show you the essential steps for accurately measuring commercial doors, covering aspects such as handing, hinge placements, and glass measurements where applicable.

Determine the Door Handing

Before taking any measurements, it’s essential to understand the concept of door handing. Handing refers to the direction in which the door swings when opened. Doors can be left-handed (LH), right-handed (RH), left-hand reverse (LHR), or right-hand reverse (RHR). Determining handing ensures that the door will open in the desired direction and align correctly with adjacent structures.

Door Size

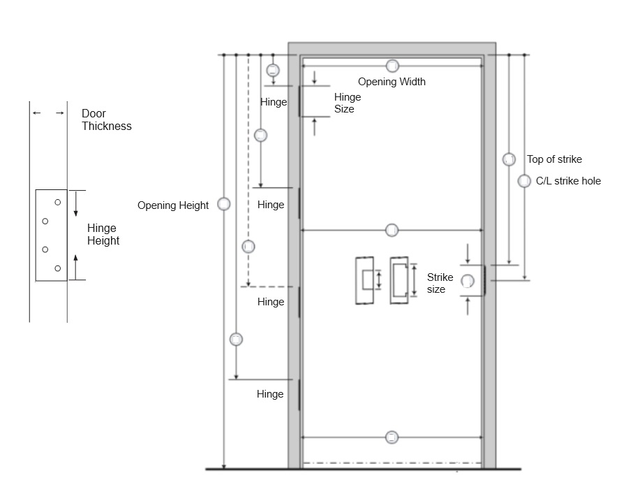
The door measurements include the height, width and thickness of the door as well as hinge pitching and strike location. All these measurements need to line up for a door to function properly.

Determine Hinge Placements

Next, identify the location of the hinges on the door frame. Measure the vertical distance from the top of the door frame to the top of each hinge, as well as the vertical distance between hinges. If you are ordering a frame as well as a door, you do not need to worry about hinge placements as the door will be fabricated to fit the frame.

Consider Glass Measurements

If the commercial door includes glass panels, accurate measurements are vital to ensure a proper fit. Measure the width and height of each glass panel separately, accounting for any frames or trim. The best measurement for this would be the daylight opening – The width and the height of the visible glass. Additionally, note the thickness of the glass if possible, as this information will be necessary for ordering replacement panels or hardware.

If you’re unsure about any aspect of the measurement process or encounter unique challenges, don’t hesitate to consult with one of experienced professionals. We offer valuable guidance and assistance to ensure optimal results.